Real Estate Leasing
免震構造と災害対応力!
仙台市中心部、公庁街隣接
アベキのハイスペックオフィスビル
賃貸事業
アベキは、イースタンビル(オフィスビル)の賃貸事業を行っております。杜の都・仙台の中心部、官庁街に隣接するイースタンビルは、1階が店舗、2~4階が自走式駐車場、5~9階がオフィスの免震オフィスビルです。高減衰積層ゴムとオイルダンパーを用いた免震装置により、大地震時の揺れを1/2~1/3に軽減。非常用発電機は24時間対応し、断水時も1日分の飲料水を確保。雨水利用システムにより、3日程度のトイレ使用が可能と、安心・安全と災害対応力が特徴です。
物件概要
| 物件名 | イースタンビル |
| 所在地 | 宮城県仙台市青葉区上杉1-6-6 |
| 最寄り駅 | 市営地下鉄南北線 北四番丁駅 徒歩3分 |
| 竣工年月 | 2014年9月 |
| 規模 | 地上9階 |
| 構造 | 鉄骨造 |
| 基準階面積 | 273.1坪 / 902.8㎡ |
| 延床面積 | 2,862.33坪 / 9,462.25㎡ |
| 警備 | 機械警備・有人警備併用 |
| 駐車場 | 自走式 最大68台 |
| エレベーター数 | 2基 |
| 基準天井高 | 2,900㎜ |
| 基準床荷重 | 500kg / ㎡ |
| 空調 | 冷房:個別空調 / 暖房:個別空調 |
アクセス: 仙台地下鉄南北線 北四番丁駅より徒歩3分
仙台地下鉄南北線 勾当台公園駅より徒歩4分
免震・防災・環境
建物の重量は、柱下に配置された免震装置によって確実に支えられています。この免震装置には高減衰積層ゴムが採用されており、オイルダンパーと組み合わせることで、効率的に地震エネルギーを吸収する仕組みになっています。そのため、大規模な地震が発生した場合でも、建物の被害を最小限に抑え、地震後も機能を維持することができます。
安心安全の免震構造(大地震時の揺れを1/2~1/3に軽減)
非常用発電機は24時間対応でテナント内に非常用電源を供給可能
受水槽を設置し断水時も飲料水を確保(1日程度)
環境に配慮した雨水による洗浄水システムを採用、断水時もトイレ使用可能(3日程度)
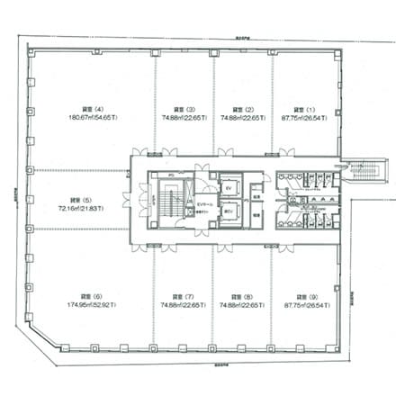
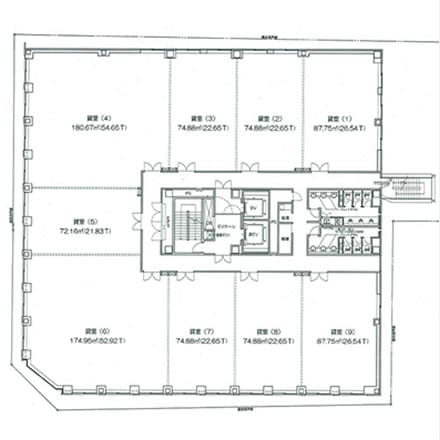
ビル階構成
フロア詳細
1階は店舗が配置されており、ビル全体のにぎわいを演出します。
2~4階は自走式駐車場となっており、大地震時にはタワー式駐車場に見られる不動などの不具合を心配することなく、また5~9階のオフィス階に直結しているため、非常に便利です。
基準階の貸室面積は273坪(902.8㎡)で、最大9区画、最小23坪(7,488㎡)
利便性
6~9階の各フロアには、22のゾーンに個別空調が設置されており、レイアウトの自由度が高く、地震に強いグリッド型のシステム天井を採用することで、快適で安全な環境を提供します。
各階のエレベーターホールおよび各テナントの入口には、非接触式ICカードによる入退管理システムが導入されています。女子トイレにはプライベートボックスを設け、プライバシーを確保しています。
お問い合わせ
イースタンビルの詳しいパンフレット(PDF)はこちらからダウンロード出来ます。
イースタンビルに関するお問い合わせはこちらにご連絡ください。







